Listed by Coldwell Banker Best Homes Carol A. Wise
Bought with NWMLS-NonOffice
Bought with NWMLS-NonOffice
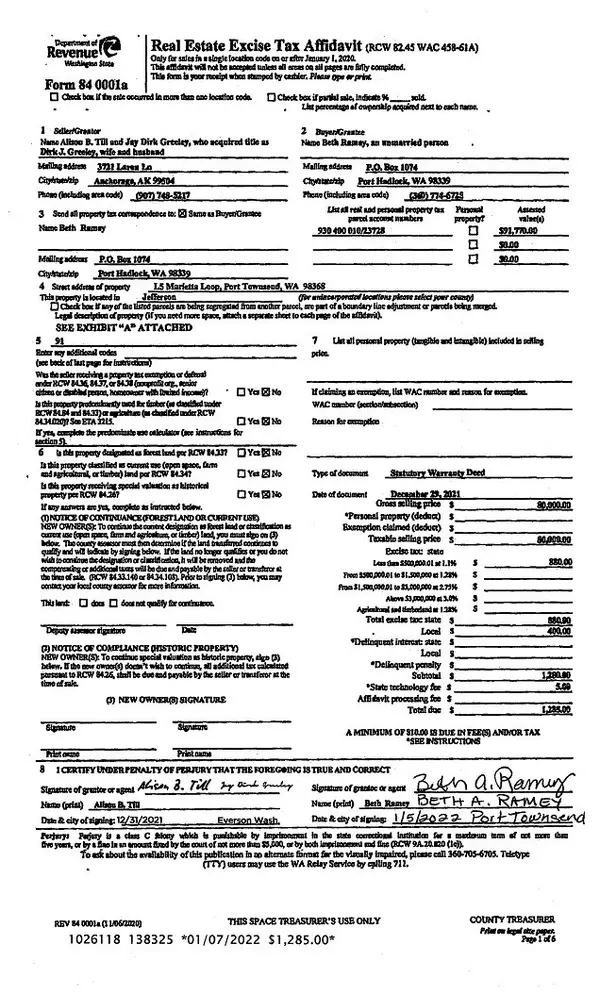
$80,000
$80,000
Est.Price: ?
For more information regarding the value of a property, please contact us for a free consultation.
0.82 Acres Lot
0 L5 Marietta LOOP Port Townsend, WA 98368
Est. payment /mo
SOLD DATE : 01/07/2022Want to know what your home might be worth? Contact us for a FREE valuation!
Submit

Our team is ready to help you sell your home for the highest possible price ASAP
Key Details
Sold Price $80,000
Property Type Vacant Land
Sub Type Land
Listing Status Sold
Purchase Type For Sale
Subdivision Port Townsend
MLS Listing ID 1877590
Sold Date 01/07/22
Style 40 - Res-Less thn 1 Ac
Lot Size 0.820 Acres
Property Sub-Type Land
Location
State WA
County Jefferson
Area 480 - Port Townsend
Interior
Fireplace false
Exterior
Utilities Available Electricity Not Available
View Y/N No
Building
Sewer Not Available
Others
Senior Community No
Read Less

"Three Trees" icon indicates a listing provided courtesy of NWMLS.
GET MORE INFORMATION


